BETONELEMENTER
AIRDECK
AirDeck er et fleksibelt dæk-system, der giver mulighed for bjælkeløse dæk, udkragninger og spændende former, samtidig med at der opnås en væsentlig vægtbesparelse på op til 30% i forhold til massiv dæk.
I AirDeck er der mulighed for at støbe køle- og varmeslanger samt ventilation ind i hvert enkelt betondæk. Dermed fordeles temperaturreguleringen via konstruktionen, hvilket giver et bedre indeklima – fordi behovet for direkte ventilation med risiko for træk bliver mindre. Den aktive udnyttelse af betonens varmekapacitet minimerer energiforbruget. Læs mere i vores Airdeck brochure.
Også el-kabler og afløb kan støbes ind i hvert enkelt dæk efter behov.
AirDeck produceres og kontrolleres i henhold til DS/EN 13747 og leveres CE-mærkede. Se mere under certifikater.
Elementgeometri
Hovedmål
AirDeck-elementer er som standard 60 mm tykke, 3,0 m brede og op til ca. 10 m lange. Maksimal bredde er 3,5 m.
AirDeck kan også leveres i 70 mm tykkelse (brandmodstandsevne 120 minutter) og 90 mm (for integrationen af rørføring til termisk masse aktivering).
Som standard markedsføres AirDeck i følgende 4 tykkelser:
| Type | Højde | Bokshøjde | In situ beton mængde | Typisk vægt, 60 mm element | Typisk vægt, 90 mm element | Typisk spænd kontor, 60 mm | Typisk spænd kontor, 90 mm |
|---|---|---|---|---|---|---|---|
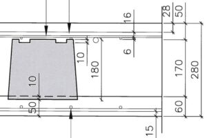
| A280 | 280 mm | 180 mm | 0,159 m3/m2 | 5,3 kN/m2 | 5,6 kN/m2 | 8,5 x 8,5 m | 7,5 x 7,5 m |
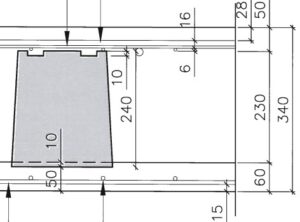
| A340 | 340 mm | 240 mm | 0,195 m3/m2 | 6,4 kN/m2 | 6,7 kN/m2 | 10,0 x 10,0 m | 9,0 x 9,0 m |
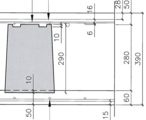
| A390 | 390 mm | 290 mm | 0,226 m3/m2 | 7,3 kN/m2 | 7,6 kN/m2 | 11,0 x 11,0 m | 10,5 x 10,5 m |
| A450 | 450 mm | 350 mm | 0,264 m3/m2 | 8,3 kN/m2 | 8,6 kN/m2 | 12,0 x 12,0 m | 11,5 x 11,5 m |
Boksene placeres med en indbyrdes centerafstand på 300 mm og filigrandragere typisk med en afstand på 600 mm.
Typisk layout af et AirDeck:
Opbygningen af de forskellige tykkelser er:
Type A280
Type A390
Type A340
Type A450
Udsparinger
Udsparinger kan udføres efter aftale.
Indstøbningsdele
Filigrandragere
AirDeck leveres som standard med filigrandragere.
Installationer
Der kan efter aftale indstøbes varme-/ køleslanger, afløb, el eller ventilation.
Samlinger og detaljer
Vederlagsdetalje 1
Enkelt vederlag
Vederlagsdetalje 3
Mellemvederlag
Vederlagsdetajle 2
Kontinuert endevederlag
Vederlagsdetalje 4
Samling mellem dæk
Bygningsfysik
Lyd
AirDeck har været underlagt en akustisk test og har sammenlignelige transmissionsværdier som et massivt dæk.
| Type | R'w |
|---|---|
| A280 | 59 dB |
| A340 | 61 dB |
| A390 | 62 dB |
| A450 | 63 dB |
Projektering og beregning
AirDeck projekteres i henhold til gældende Eurocodes.
Forudsætninger
Generelt
Deklarerede værdier for materialer og egenskaber vedr. AirDeck fremgår af ydeevnedeklarationen. Download gældende udgave her. AirDeck produceres og kontrolleres i henhold til DS/EN 13747 og leveres CE-mærkede.
Kontrolklasse
AirDeck produceres normalt i normal kontrolklasse.
Miljøklasse
AirDeck produceres standard i passiv miljøklasse. Kan også efter aftale produceres til anvendelse i moderat, aggressiv og ekstra aggressiv miljøklasse.
Overflader
Overfladen leveres som en BO28 iht. bips A24.
Betonstyrker
AirDeck produceres som standard i en beton med en styrke på 35MPa.
Tolerancer
Elementerne overholder gældende tolerancer, der kan ses her.
INFORMATION
ARMERING
Du kan finde data for både slapt armering og spændarmering her.
Brudbæreevne
Bæreevnen fastsættes i samarbejde med BETONELEMENT. Eftervisningen er baseret på en FEM beregning. Det er typisk deformationerne, som er dimensionsgivende for AirDeck.
Brand
Ved brandberegningen skal hele dækkonstruktionen medregnes.
Brandmodstandsevnen i selve elementdelen er ved forsøg dokumenteret til:
- 60 mm tykkelse: 90 minutter
- 70 mm tykkelse: 120 minutter
Montage
AirDeck monteres på lineære understøtninger, der placeres med en afstand på 0,8 m til 2 m afhængig af samlet dæktykkelse og valgt elementtykkelse.