BETONELEMENTER
TRIBUNEELEMENTER
Tribuneelementer danner ståpladser eller underlag for siddepladser i sportsarenaer og stadions.
Tribuneelementerne leveres med varierende stigning og grid – alt efter om det drejer sig om sidde- eller ståtribuner.
Til tribuneelementer leveres trappetrin med en til to stigninger.
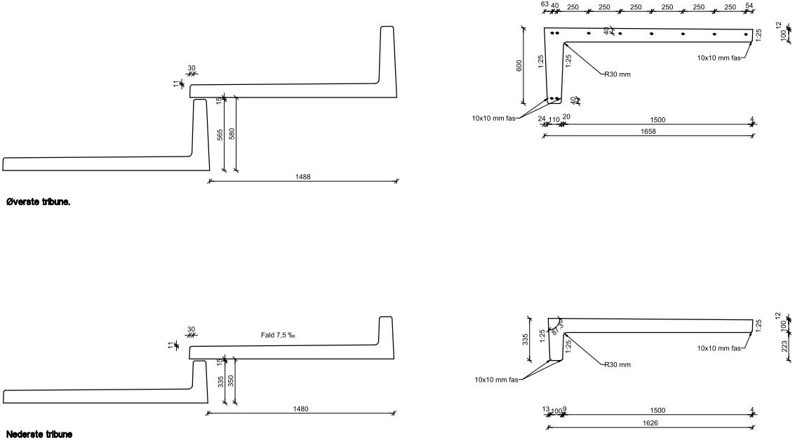
Elementgeometri
Hovedmål
L-elementerne leveres i bredde og højde tilpasset det enkelte projekt, f.eks. h = 600 mm og b = 1658 mm. Opkanten er som standard 100 mm tyk, og bundpladen er 100 mm tyk. Længden kan være op til 8 – 10 m.
Tribunebjælker leveres af hensyn til dobbelt vederlag for L-elementer minimum med en bredde på 300 mm. Fortandingen (krokodillebjælker) på den vandrette bjælkekant (trinene) tilpasses L-elementerne. Det anbefales, at der udføres en 60 mm bred ”fuge” mellem den lodrette bjælkekant og bagsiden af L-elementerne (se figur 2).
Figur 2:
Udsparinger
Under hensyntagen til armering, forme og elementets bæreevne, kan der foretages udsparinger i bjælker til rørgennemføringer, tværafslutninger, tværafstivninger og lignende.
Indstøbningsdele
Løft
I bjælker indstøbes som standard dornhuller til løft med dorne. I L-elementer indstøbes som standard inserts til løft med iskruet svirveløjebolt og 4-strings kædesling.
Lejeplader
Der udføres som standard lejeplader i tribunebjælker ved montage på fundamenter, søjler og vægge. På L-elementer udføres der som standard ingen lejeplader.
Forankring
For at forankre L-elementerne til tribunebjælkerne kan svejseplader indstøbes efter nærmere aftale. Ved sammensvejsning af L-elementer og tribunebjælker skal der tages hensyn til bygningsfysiske påvirkninger, så der undgås revner mellem svejseplade og beton.
Tribunebjælker
Tribunebjælker laves som en RB bjælke, som er tilpasset tribunen. De udføres som standard med en bredde på 300 og 360 mm.
SAMLINGER OG DETALJER
DOWNLOAD SAMLINGSDETALJER
Du kan downloade vores samlingsdetaljer af tribuneelementer som dwg- og pdf-filer her.
Projektering og beregning
Forudsætninger
Generelt
Tribuneelementer produceres og kontrolleres i henhold til DS/EN 13225 og leveres CE-mærkede.
Kontrolklasse
Tribuneelementer produceres som standard i skærpet kontrolklasse.
Miljøklasse
Tribuneelementer udføres sagsspecifik. Tribuner kan produceres i passiv, moderat og aggressiv miljøklasse.
Betonstyrker
Tribuneelementer produceres som standard i styrkeklasse 45.
Overflader
L-elementerne udføres med en overflade svarende til BO 22/ 23.
Øvrige bjælker udføres med en overflade svarende til BO 42/ 43.
Tolerancer
Elementerne overholder gældende tolerancer, der kan ses her.
INFORMATION
ARMERING
Du kan finde data for både slapt armering og spændarmering her.
Bæreevne
Bjælker og L-elementer dimensioneres efter den angivne rytmiske personlast. Af hensyn til egensvingningerne udføres L-elementer med forspændt armering. Tribunebjælker armeres, afhængig af længde og antallet af mellemunderstøtninger, enten med forspændte liner eller slap armering.
Vederlag
Ved lejetryk over halvdelen af betonens regningsmæssige trykstyrke i tribunebjælkerne, skal der udføres særlige foranstaltninger. Dette forudsættes afklaret med BETONELEMENTs projekteringsafdeling før projekteringsstart.
Pilhøjde
Tribunebjælker udføres med en så beskeden pilhøjde, som det er muligt af hensyn til mellemunderstøtninger med mere. Tilsvarende dimensioneres L-elementer med en beskeden pilhøjde.
Brand
Den brandtekniske klassifikation afhænger af bjælkebredde, bjælketykkelse og armeringsplacering. Normalt vil både tribunebjælker og L-elementer kunne dimensioneres til REI 60 A2.
Ønskes en højere brandklassifikation forudsættes dette i hvert enkelt tilfælde drøftet med vores projekteringsafdeling under iagttagelse af belastningsforudsætninger og elementtværsnit.

